Der Neubau auf dem Grundstück Heubuckelweg 7 und die energetische Sanierung und der Umbau auf dem Grundstück Heubuckelweg 9 bildet mit dem bestehenden Gebäude und dessen Anbau ein Ensemble aus Miet- und Eigentumswohnungen. Das bestehende Gebäude wird in seinem Architekturstil erhalten und von dessen Anbau und dem neuen Mehrfamilienhaus mit zeitgemäßer Architektur ergänzt.
Quartier Heubuckelweg
| Status: | in Planung, Bauantrag |
| Baubeginn: | Frühjahr 2026 |
| Fertigstellung: | 2028 |
| Bauherr: | Wohnbau Birkenfeld GmbH & Co. KG |
| Architekt: | Höll Architekten |
Hier entstehen Wohneinheiten in zentraler Lage in Birkenfeld
Die Wohnbau Birkenfeld GmbH & Co. KG möchte mit dem Neubau moderne Wohnungen zum Erwerb schaffen. Wohnbau Birkenfeld ist sich als Tochterunternehmen der Gemeinde Birkenfeld ihrer Vorbildfunktion im Bereich Energie, Gestaltung und Nachhaltigkeit bewusst und wird diese Punkte im Bauvorhaben konsequent verfolgen.
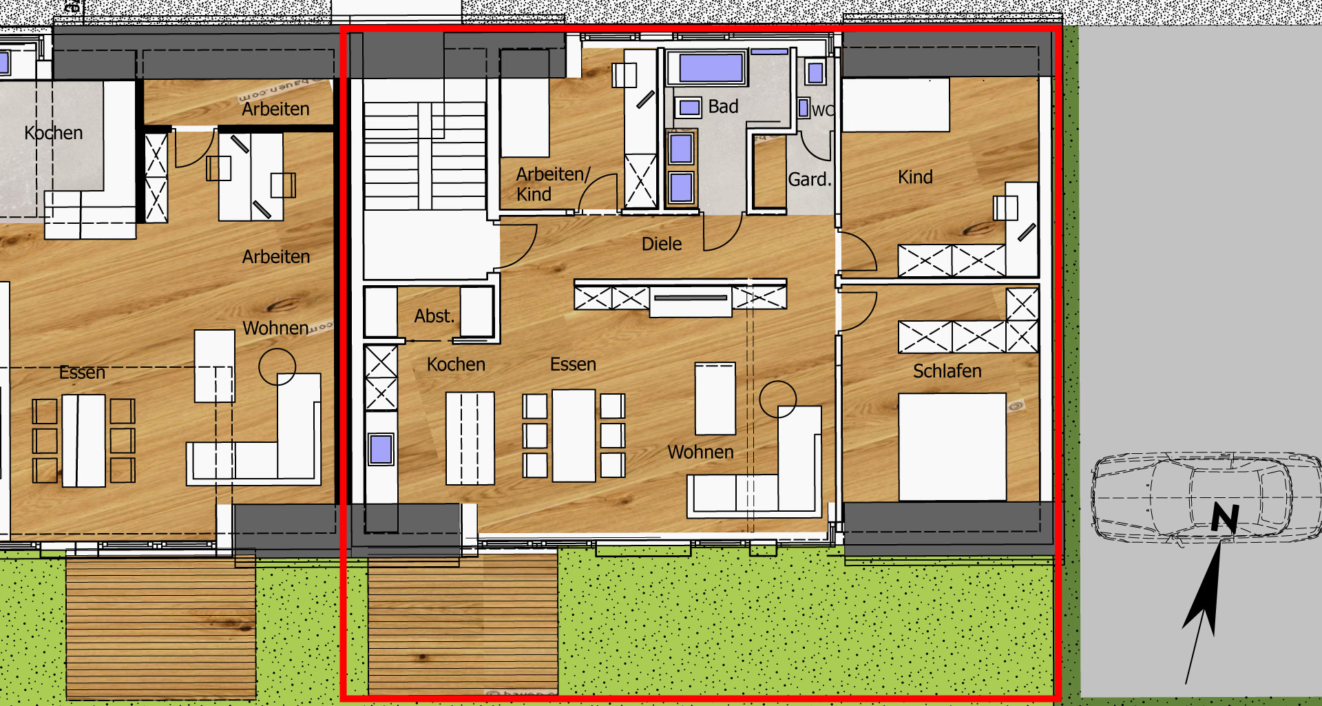
Eigentumswohnungen Heubuckelweg 7
Wohnanlage mit 8 Einheiten
Die Wohnanlage besteht aus 8 Eigentumswohnungen mit einer Gesamtwohnfläche von rd. 600 m². Der zeitgemäße, kubische Bau überzeugt durch eine klare Architektur. Ein verglastes Treppenhaus sorgt für natürliches Licht im Eingangsbereich. Alle Wohnräume sind nach Süden ausgerichtet und verfügen über überdachte Balkone, die einen geschützten Außenbereich bieten.
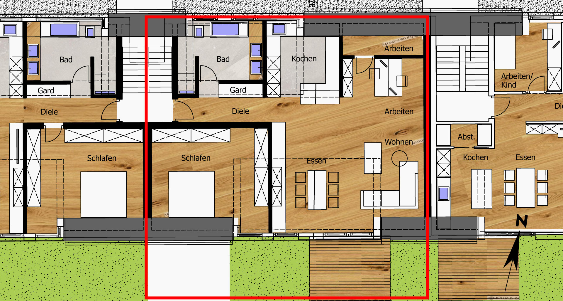
Mietwohnungen Heubuckelweg 9
Wohnanlage mit 14 Einheiten
Die Wohnanlage bietet 14 Mietwohnungen mit insgesamt ca. 1060 m² Wohnfläche. Ein moderner Anbau sowie ein Aufzug sorgen für zeitgemäßen Komfort und gute Erreichbarkeit.
Zentrale Lage in Birkenfeld


Ansichten Bauantrag


News
Das Bauschild markiert den offiziellen Startschuss für das Quartier Heubuckelweg.

Der Spatenstich ist gesetzt!

Eigentumswohnungen Heubuckelweg 7
Wohnanlage mit 8 Einheiten
Die Wohnanlage besteht aus 8 Eigentumswohnungen mit einer Gesamtwohnfläche von rd. 600 m². Der zeitgemäße, kubische Bau überzeugt durch eine klare Architektur. Ein verglastes Treppenhaus sorgt für natürliches Licht im Eingangsbereich. Alle Wohnräume sind nach Süden ausgerichtet und verfügen über überdachte Balkone, die einen geschützten Außenbereich bieten.
Eigentumswohnungen Heubuckelweg 7
3-Zimmer Wohnung mit Terrasse EG 1
- EtageErdgeschoss
- Wohnfläche86,846 m²
- Preis / m2keine Angaben
- Hausgeldkeine Angaben
Eigentumswohnungen Heubuckelweg 7
2-Zimmer Wohnung mit Terrasse EG 2
- EtageErdgeschoss
- Wohnfläche51,117 m²
- Preis / m2keine Angaben
- Hausgeldkeine Angaben
Eigentumswohnungen Heubuckelweg 7
3-Zimmer Wohnung mit Terrasse EG 3
- EtageErdgeschoss
- Wohnfläche88,331 m²
- Preis / m2keine Angaben
- Hausgeldkeine Angaben
Eigentumswohnungen Heubuckelweg 7
3-Zimmer Wohnung mit Balkon OG 4
- EtageObergeschoss
- Wohnfläche88,331 m²
- Preis / m2keine Angaben
- Hausgeldkeine Angaben
Eigentumswohnungen Heubuckelweg 7
2-Zimmer Wohnung mit Balkon OG 5
- EtageObergeschoss
- Wohnfläche51,117 m²
- Preis / m2keine Angaben
- Hausgeldkeine Angaben
Eigentumswohnungen Heubuckelweg 7
3-Zimmer Wohnung mit Balkon OG 6
- EtageObergeschoss
- Wohnfläche88,331 m²
- Preis / m2keine Angaben
- Hausgeldkeine Angaben
Eigentumswohnungen Heubuckelweg 7
3-Zimmer Wohnung mit Balkon DG 7
- EtageDachgeschoss
- Wohnfläche74,28 m²
- Preis / m2keine Angaben
- Hausgeldkeine Angaben
Eigentumswohnungen Heubuckelweg 7
3-Zimmer Wohnung mit Balkon DG 8
- EtageDachgeschoss
- Wohnfläche74,28 m²
- Preis / m2keine Angaben
- Hausgeldkeine Angaben
Mietwohnungen Heubuckelweg 9
Wohnanlage mit 14 Einheiten
Die Wohnanlage bietet 14 Mietwohnungen mit insgesamt ca. 1060 m² Wohnfläche. Ein moderner Anbau sowie ein Aufzug sorgen für zeitgemäßen Komfort und gute Erreichbarkeit.
Mietwohnungen Heubuckelweg 9
2-Zimmer Wohnung mit Terrasse UG 5
- EtageUntergeschoss
- Wohnfläche51,93 m²
- Kaltmietekeine Angaben
- Preis / m2keine Angaben
- Nebenkostenkeine Angaben
- Kautionkeine Angaben
- Garage/Stellplatzkeine Angaben
Mietwohnungen Heubuckelweg 9
2-Zimmer Wohnung mit Terrasse UG 6
- EtageUntergeschoss
- Wohnfläche52,89 m²
- Kaltmietekeine Angaben
- Preis / m2keine Angaben
- Nebenkostenkeine Angaben
- Kautionkeine Angaben
- Garage/Stellplatzkeine Angaben
Mietwohnungen Heubuckelweg 9
3-Zimmer Wohnung mit Terrasse UG 1
- EtageUntergeschoss
- Wohnfläche87,52 m²
- Kaltmietekeine Angaben
- Preis / m2keine Angaben
- Nebenkostenkeine Angaben
- Kautionkeine Angaben
- Garage/Stellplatzkeine Angaben
Mietwohnungen Heubuckelweg 9
4-Zimmer Wohnung mit Balkon EG 9
- EtageErdgeschoss
- Wohnfläche111,15 m²
- Kaltmietekeine Angaben
- Preis / m2keine Angaben
- Nebenkostenkeine Angaben
- Kautionkeine Angaben
- Garage/Stellplatzkeine Angaben
Mietwohnungen Heubuckelweg 9
2-Zimmer Wohnung mit Balkon EG 8
- EtageErdgeschoss
- Wohnfläche44,83 m²
- Kaltmietekeine Angaben
- Preis / m2keine Angaben
- Nebenkostenkeine Angaben
- Kautionkeine Angaben
- Garage/Stellplatzkeine Angaben
Mietwohnungen Heubuckelweg 9
3-Zimmer Wohnung mit Balkon EG 7
- EtageErdgeschoss
- Wohnfläche74,62 m²
- Kaltmietekeine Angaben
- Preis / m2keine Angaben
- Nebenkostenkeine Angaben
- Kautionkeine Angaben
- Garage/Stellplatzkeine Angaben
Mietwohnungen Heubuckelweg 9
4-Zimmer Wohnung mit Balkon EG 2
- EtageErdgeschoss
- Wohnfläche97,63 m²
- Kaltmietekeine Angaben
- Preis / m2keine Angaben
- Nebenkostenkeine Angaben
- Kautionkeine Angaben
- Garage/Stellplatzkeine Angaben
Mietwohnungen Heubuckelweg 9
4-Zimmer Wohnung mit Balkon OG 12
- EtageObergeschoss
- Wohnfläche111,15 m²
- Kaltmietekeine Angaben
- Preis / m2keine Angaben
- Nebenkostenkeine Angaben
- Kautionkeine Angaben
- Garage/Stellplatzkeine Angaben
Mietwohnungen Heubuckelweg 9
2-Zimmer Wohnung mit Balkon OG 11
- EtageObergeschoss
- Wohnfläche44,83 m²
- Kaltmietekeine Angaben
- Preis / m2keine Angaben
- Nebenkostenkeine Angaben
- Kautionkeine Angaben
- Garage/Stellplatzkeine Angaben
Mietwohnungen Heubuckelweg 9
3-Zimmer Wohnung mit Balkon OG 10
- EtageObergeschoss
- Wohnfläche74,62 m²
- Kaltmietekeine Angaben
- Preis / m2keine Angaben
- Nebenkostenkeine Angaben
- Kautionkeine Angaben
- Garage/Stellplatzkeine Angaben
Mietwohnungen Heubuckelweg 9
4-Zimmer Wohnung mit Balkon OG 3
- EtageObergeschoss
- Wohnfläche97,63 m²
- Kaltmietekeine Angaben
- Preis / m2keine Angaben
- Nebenkostenkeine Angaben
- Kautionkeine Angaben
- Garage/Stellplatzkeine Angaben
Mietwohnungen Heubuckelweg 9
2-Zimmer Wohnung mit Balkon DG 14
- EtageDachgeschoss
- Wohnfläche88,79 m²
- Kaltmietekeine Angaben
- Preis / m2keine Angaben
- Nebenkostenkeine Angaben
- Kautionkeine Angaben
- Garage/Stellplatzkeine Angaben
Mietwohnungen Heubuckelweg 9
2-Zimmer Wohnung mit Balkon DG 13
- EtageDachgeschoss
- Wohnfläche86,03 m²
- Kaltmietekeine Angaben
- Preis / m2keine Angaben
- Nebenkostenkeine Angaben
- Kautionkeine Angaben
- Garage/Stellplatzkeine Angaben
Mietwohnungen Heubuckelweg 9
4-Zimmer Wohnung mit Balkon DG 4
- EtageDachgeschoss
- Wohnfläche86,78 m²
- Kaltmietekeine Angaben
- Preis / m2keine Angaben
- Nebenkostenkeine Angaben
- Kautionkeine Angaben
- Garage/Stellplatzkeine Angaben
Nichts verpassen!
Wohnbau-Newsletter
abonnieren
Bleiben Sie informiert über neue Projekte, Vermietungen und Verkaufsangebote und vieles mehr in Birkenfeld – direkt in Ihr Postfach.